Residential Projects

Residential Renovations and Additions

I have always valued residential projects because they provide an opportunity to work directly with the key shareholders and end users of the project, the residence owners. These projects often involve working on an existing structure, which can create interesting design challenges. The ability to apply my skills to work hand in hand with a client and improve their living space is an honor and a deeply satisfying experience. The selection below shows a variety of residential projects from across the country.

2017_ewles_2.jpg
 

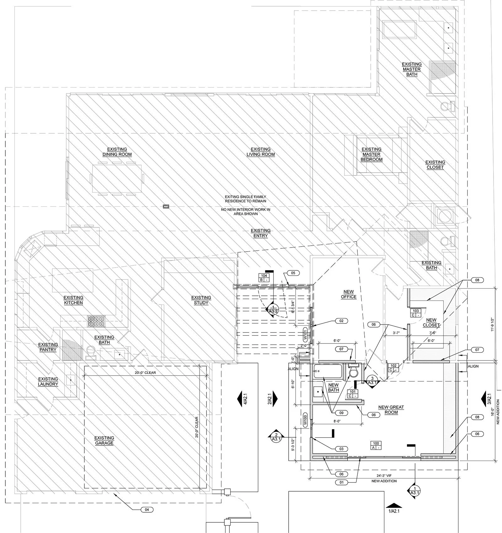
Ewles Residence- Renovation and Addition

Dana Point, CA

2015

This project involved an internal reorganization and addition to an existing beach bungalow to provide better use of the space for an empty nesting lifestyle. Two bedrooms were repurposed to a new office and spacious closet, and a new great room was added to the residence with direct access to a re-landscaped front yard.

This project was completed in collaboration with R.D. Pinault Builders, Inc.

EWLES_PLAN_1.jpg
correa_plan.jpg
 

Correa Residence- Renovation and Addition

Laguna Hills, CA

2015

This project was focused on capitalizing on the out door living possibilities an existing suburban residence. A new covered patio with outdoor kitchen and shade pergola were added to the back of the residence, and the kitchen, dining and family rooms were redesigned to improve circulation. A two sided gas log fireplace and large folding doors create connections between the interior and exterior, creating a large and functional entertaining and living space.

This project was completed in collaboration with R.D. Pinault Builders, Inc.

2015_Correa_elev_1.jpg
angela_1.jpg
 

Arehart Residence- Deck Enclosure and Deck

Midlothian, VA

2011

The design for this project aimed to make the best use of a constrained suburban lot for a new deck. Existing HOA setbacks and guidelines turned a simple drafting exercise into a more involved challenge. The program called for a screened enclosure of an existing deck, and a small deck with built in seating to house the client’s existing outdoor furnishings.

Three dimensional modeling and photo montages were used extensively in the schematic design phase to help the client visualize the space and understand the design. Design schemes could be rapidly modeled and shared to investigate opportunities and easily discuss the evolving design.

This schematic design studies were modeled with Google Sketchup. Construction documents were created with AutoCAD.

2006001A2_2.jpg
 

Eggleston Residence- Addition

Richmond, VA

2006

This design added an informal great room and a sitting space to the existing residence. It was a part of a greater renovation that included a kitchen remodel, window replacements and site work. Connections to both side yards were maintained through the great room, and east oriented skylights allowed for natural light to the spaces in the mornings.

Construction documents were created with AutoCAD

Conceptual sketches were created by hand

2006001_050118_rendering_1.jpg
Previous
Previous

Rancho Rosudo

Next
Next

Pala Casino- Hotel Garage Addition